Linderinsali

Lohjan pääkirjastolla sijaitsee Lohjan Museon näyttelytila Linderinsali. Saliin pääsee kirjaston uutisalueelta. Museo vuokraa tilaa näyttelyille.

Lohjanseudun kuvataidekoulun näyttely vuonna 2023.

Hae tilaa

Ennen tilahakemuksen täyttämistä tutustu tilan käyttöehtoihin tästä pdf-tiedostosta.

Voit täyttää tilahakemuksen sähköisesti verkossa Webropol-lomakkeella, jolle pääset Hae tilaa ‑painikkeella. Käsittelemme hakemukset saapumisjärjestyksessä. Käsittelyaika on enimmillään kaksi viikkoa, joskin loma-aikoina käsittelyssä voi kestää pidempään. Tarvittaessa voit tiedustella käsittelyn etenemistä museon yleisen sähköpostin museo@lohja.fi kautta.

Katso tästä tilan näyttelykalenteri: https://www.lohja.fi/vapaa-aika-liikunta/lohjan-museo/nayttelyt/linderinsalin-nayttelyt/

Hinnasto 2026

Linderinsalin vuokra on 247 €/viikko tai 600 €/kuukausi. Hinnat sisältävät arvonlisäveron 25,5 %. Tilavuokraan sisältyy museomestarin alkuneuvonta näyttelytilan käyttöön.

Lisäksi on mahdollista tilata näyttelyn pystytyspalvelun. Palvelun hinta on 55,00 euroa alkavalta tunnilta.

Suositeltavat vuokrausajat ovat 2−4 viikkoa.

Tietoja Linderinsalista

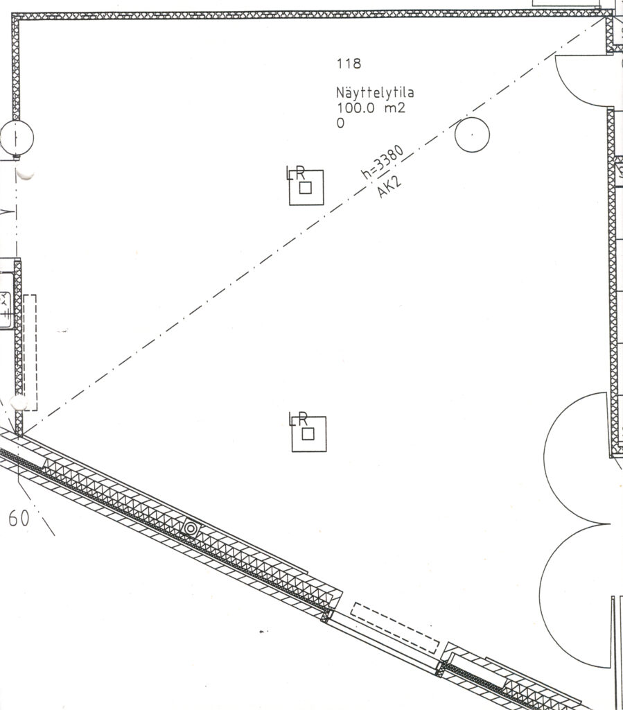
Näyttelytila sijaitsee Lohjan pääkirjastossa osoitteessa Karstuntie 3 ja on avoinna kirjaston aukioloaikojen mukaan.

Tilan koko on 100 m2. Valkoiseksi maalattuja seiniä kiertää ripustuskisko, josta teokset ynnä muut tulee ripustaa seinille vaijereilla. Seiniin ei saa lyödä nauloja. Tilaan on saatavilla erillisiä ripustuslevyjä, joihin voi naulata teoksia, jos se asettelun kannalta on välttämätöntä. Lisäksi käytettävissä on vapaasti seisovia seinäkkeitä, joilla tilaa voi jakaa ja hyödyntää näytteille asettelussa. Kirjaston kanssa yhteiskäytössä on joitakin vitriineitä. Jos haluat lainata niitä näyttelyysi, tiedustele vitriinien saatavuutta viimeistään vuokrahakemuksen lisätietokentässä.

Linderinsalissa on käytössä yleisvalo ja kohdevalaisimet. Näytteilleasettaja voi vapaasti valita, käytetäänkö tilassa yleisvaloa, kohdevaloa tai näiden yhdistelmää.

 

Aiheeseen liittyvää: